Description
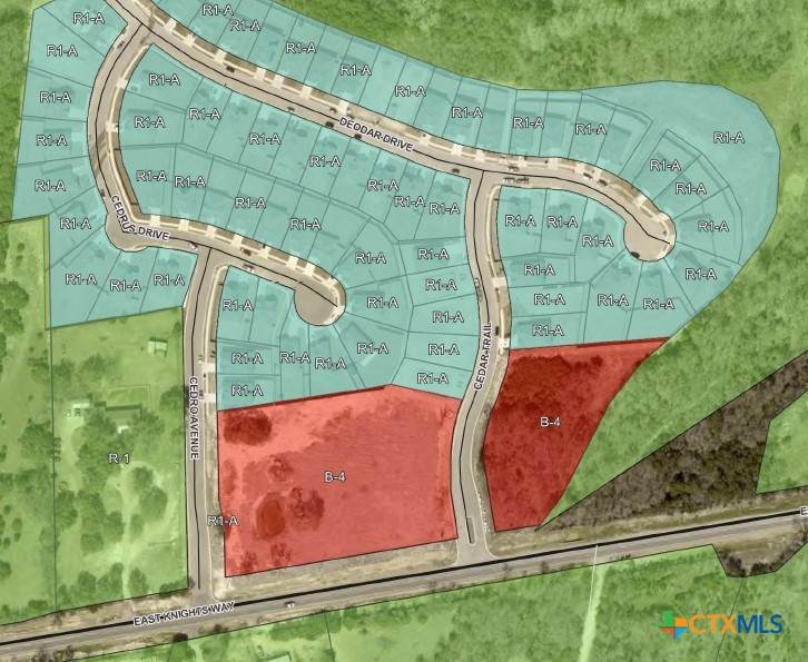
Commercial Land - Located at the corner of FM 2410 and Cedar Trail - 3.169+/- Acres zone B4 Commercial. Priced at $690,208.00 or $5 psf. Located in the city limits of Harker Heights, Texas. TXDOT Traffic Count is 6,423 cars per day in this growing area. City water and sewer are available. Examples of B4 Commercial use is any permitted use of lower zoning such as office, general business, coffee shop, barber shop, school, police or fire station, place of worship, fitness center, cleaners, pharmacy, florist, nursing home, child care, real estate office, restaurant, retail store, grocery store, bank, hotel, and parking lots, bakery, dance hall, skating rink, public garage, bowling alley, antique shop and more. An additional 3.169+/- acres is available next door on the other side of Cedar Trail at FM 2410.
School Ratings & Info
© 2026 Central Texas MLS.
Listing courtesy of Barry Hinshaw of John Reider Properties II, Ltd: (254) 699-8300.
Description
Commercial Land - Located at the corner of FM 2410 and Cedar Trail - 3.169+/- Acres zone B4 Commercial. Priced at $690,208.00 or $5 psf. Located in the city limits of Harker Heights, Texas. TXDOT Traffic Count is 6,423 cars per day in this growing area. City water and sewer are available. Examples of B4 Commercial use is any permitted use of lower zoning such as office, general business, coffee shop, barber shop, school, police or fire station, place of worship, fitness center, cleaners, pharmacy, florist, nursing home, child care, real estate office, restaurant, retail store, grocery store, bank, hotel, and parking lots, bakery, dance hall, skating rink, public garage, bowling alley, antique shop and more. An additional 3.169+/- acres is available next door on the other side of Cedar Trail at FM 2410.
© 2026 Central Texas Multiple Listing Service, Inc. All rights reserved. IDX information is provided exclusively for consumers' personal, non-commercial use and may not be used for any purpose other than to identify prospective properties consumers may be interested in purchasing. Some properties which appear for sale on the website may no longer be available because they are for instance, under contract, sold or are no longer being offered for sale. Information is deemed reliable but is not guaranteed accurate by the MLS or The Real Estate Home Team LLC. Data last updated: 2026-02-11T00:05:55.39.
